Coastal House

 

This steeply sloped residential garden in Kent is inspired by the simplicity of Japanese & Scandinavian design: Simple, elegant and beautiful in its form & functionality.


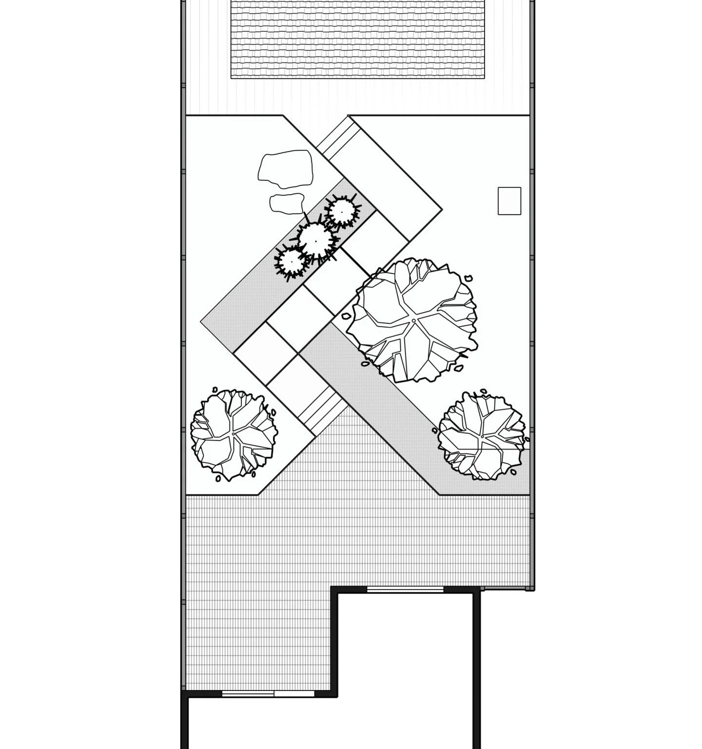
The Brief

Turn this steep & awkward space into a garden for work & relaxation. Add an artists studio, more space for dining & entertaining and kick-start a new planting scheme for the new home-owners to enjoy. Reflect the mid-century style of the house.


The Garden

A garden of terraces, with more usable space for life outside. A new path with steps leads through a simple garden, inspired by Japanese and Scandinavian asymmetry. A bespoke cabin at the rear of the garden provides ample space for my client to work from home.

This garden will be built in Spring 2026

Previous
Previous

Family House

Next
Next

Historic House