Historic House

Coming Soon

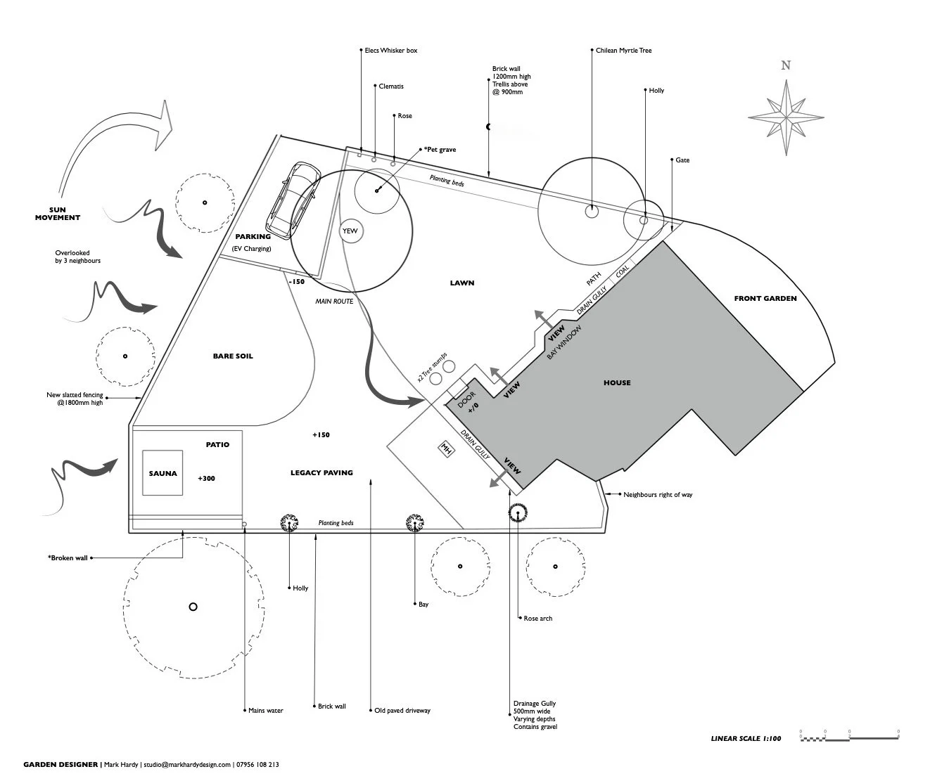
This former Vicarage in Deal, Kent was first built in 1792.

The back garden needs a full renovation, sensitive to the distinctive period of the house but also more suited to modern family life.

This garden is currently in design and will be built in late Spring 2026

Previous
Previous

Coastal House

Next
Next

Cottage Garden